Вариант перепланировки — спальня и кухня-гостиная
Менее радикальный вариант — перенести стену между комнатой и кухней, оборудовав большую кухню-гостиную. Поскольку здесь также идет расширение зоны кухни на жилую зону, действуют те же правила, запятая, что и при обустройстве квартиры-студии. Объединять часть жилой комнаты и кухню без установки между ними двери можно только в том случае, если на кухне стоит электрическая плита.
Газовую плиту при желании можно заменить на электрическую, это тоже потребует подготовки проекта перепланировки и переустройства помещения. Все работы с газовым оборудованием лучше доверить специалистам АО «Мосгаз». Это обеспечит качество работ и отсутствие проблем при согласовании перепланировки.
Услуги АО «МОСГАЗ»
Пример того, как можно отделить кухонную зону от зоны гостиной с помощью разных покрытий.
Проблемы при согласовании перепланировки
Перед тем как начать перепланировку малогабаритной квартиры хрущевки, нужно ознакомиться с основными требованиями при согласовании. Проект по перепланировке квартиры с одной комнатой легко согласовать, однако, стоит учитывать ряд важных требований:
- если квартира с одной комнатой, то согласовать и создать студию не получится. Согласно закону в квартире должна иметься одна отдельная жилая комната, которая должна быть изолированной, с естественным светом и размером площади не менее 9 кв метров;
- если соединяется комната и кухня, то в итоге получается общая комната – кухня гостиная, которая является нежилой. Из этого следует, что полное объединение кухни со смежной комнатой и коридором, возможно осуществить только в квартире с двумя комнатами. Кроме этого, вход в туалет и ванну не должен располагаться на границе с остальным пространством. Вход следует перегородить небольшой перегородкой раздвижного типа, как показано на фото;
- многое зависит от округа, где располагается сам дом. В некоторых не разрешается объединять газифицированную кухню с жилым пространством;
- при перепланировке хрущевки запрещено переносить кухню в жилую комнату, исключением считается не газифицированная квартира на первом этаже.
Что можно сделать с однокомнатной хрущевкой
Основные варианты перепланировки в однушках хрущевских домов связаны с увеличением площади кухни или санузла. Но предпочтения и пожелания у хозяев могут быть противоположными: например, одним нужен совмещенный санузел, другие считают, что раздельный удобнее и функциональнее. Поэтому итоговое решение можно принимать только с учетом конфигурации конкретной квартиры и потребностей ее владельцев.
Вот что можно сделать в однокомнатной хрущевке:
- объединить или разделить санузел;
- расширить санузел на площадь коридора;
- сделать студию, объединив кухню и комнату;
- объединить комнату и лоджию, установив французское окно;
- перенести плиту, раковину, сантехнику;
- установить душевую кабину;
- снести встроенные шкафы, кладовки;
- оборудовать гардеробную, встроенный шкаф в удобном месте;
- разделить жилую комнату на две.
в WhatsApp
Сколько будет стоить перепланировка однокомнатной хрущёвки? У нас однокомнатная хрущевка, 30 кв.м Перепланировка хрущевки в 2020 Здравствуйте!
Типовые варианты планировки с размерами
Квартиры этого типа строились в кирпичных домах в 5 этажей, после модификации число этажей изменилось на 9 и 12.
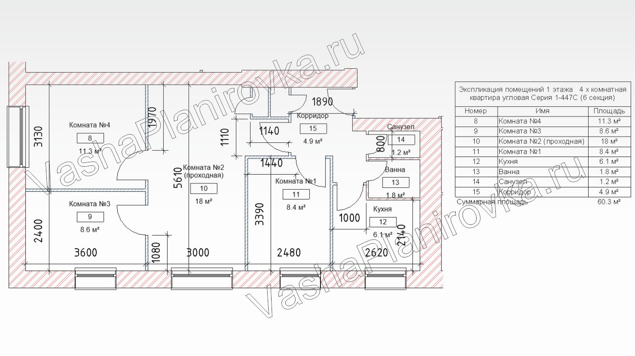
Планировка 4х комнатной квартиры в доме (серия I-447C)
Несущие стены в кирпичных хрущевках располагаются по длинной стороне здания. Комнаты выходят на одну сторону фасада дома, в гостиной выход на сдвоенный балкон длиной 3 м и шириной 1 м. На первых этажах кирпичной постройки балкон отсутствует.
Планировочное решение квартиры 4х комнатной хрущевки серия дома 1мг-300
Планировка прихожей в таких квартирах — имеет квадратную форму в которой сложно разместить какую-либо мебель. Из ее идут проходы в изолированные комнаты. В маленьких комнатах размещаются спальные и детские. Раздельный санузел не доставляет проблем для проживания большого количества людей. Если разобрать встроенные шкафы, то планировка коридора измениться и можно будет установить вместительный шкаф купе.
В коридоре застройщиком устанавливаются встроенные шкафы. Под потолком устанавливаются антресоли.
Другие способы расширения пространства
Изменить восприятие небольшого помещения помогут разные дизайнерские приемы, которые владельцы успешно используют вкупе с перепланировкой.
Максимум света

Именно его больше всего не хватает в небольших квартирах. Комнаты с одним окном требуют дополнительных источников света, поэтому идеальным решением станет расположение нескольких из них в одном помещении. Это может быть люстра, висящая под потолком, лампа на тумбочке, торшер в углу или бра на стенах. В гостиных от центральной массивной люстры лучше отказаться, так как многоярусным приборам нужна соответствующая высота потолков.
Мебель
Проведенная перепланировка 3-х комнатной хрущевки не сильно поможет, если мебель в квартире занимает львиную долю пространства. Для небольших помещений рекомендуют компактные модульные предметы лаконичной формы. Мебель-трансформер, которую довольно просто спрятать в шкафы, ниши, идеальна. Купить или заказать ее можно как в реальных магазинах, так и на специализированных сайтах.

Небольшие кухни требуют мебели, плотно прилегающей к подоконнику и стенам. Оптимальны будут высокие предметы, глубоких конструкций, наоборот, нужно избегать. Светлые и натуральные оттенки — идеальный выбор для меленьких помещений. Темная мягкая мебель будет выглядеть очень массивной. Бежевые, светло-серые предметы смотрятся гораздо более легкими, придают пространству свежий вид.
Стены
Фактурные материалы и яркие цвета обоев не лучшее решение для оформления стен хрущевок. Отдавать предпочтение советуют светлым оттенкам, пастельным: бежевым, светло-желтым, молочным или светло-серым, нежно-розовым и т. д. Чтобы визуально увеличить высоту потолков, можно использовать обои, имеющие вертикальные полоски. В ванных комнатах этой цели поможет добиться светлая глянцевая плитка. Ее выкладывают от потолка до пола. Такое же напольное покрытие даст шанс получить максимальный эффект.

Потолки
Невысокие стены хрущевок требуют «спасения». В этом случае на помощь придут глянцевые натяжные потолки. Зеркальная поверхность их сможет отражать свет, создавать иллюзию простора, большой площади. Оптимальный вариант — одинаковые потолки во всех комнатах. Многоуровневые потолочные конструкции не рекомендованы, так как они сильно крадут высоту у и без того низкого помещения
Важно выбрать «правильный» цвет потолка — белый или молочный. Другие возможные виды отделки «неба» квартиры — краска, обои
Напольное покрытие
Все, что касается потолка, справедливо и для пола. В этом случае покрытие (ламинат, линолеум, паркетная доска) тоже должно быть светлых оттенков. Имитация дерева или натуральный материал станет лучшим вариантом. Сложные композиции для зонирования пространства использовать не советуют. Например, чтобы разделить кухню и гостиную, достаточно использовать два светлых материала — плитку для первой, ламинат для второй.

Другие хитрости
Чтобы квартира не казалась безликой, в роли ярких акцентов используют различные аксессуары — декоративные подушки, пледы, накидки, статуэтки, картины либо фотографии, выделенные при помощи осветительных приборов. Но умеренность крайне важна.
- Тяжелые и темные шторы крохотным хрущевкам противопоказаны. Лучше отдать предпочтение легким, воздушным тканям, которые не способны препятствовать проникновению света: органзе, сетке, тюлю, шелку.
- Большое количество зеркал, отражающих пространство, поможет создать эффект необъятности, глубины помещения. Это могут быть зеркала на стенах, предметы, встроенные в стенки шкафов, зеркальные столешницы.
- Если в роли отделки выступают обои, то лучшем решением будут или однотонные материалы, или те, что имеют мелкий/средний рисунок. Крупные орнаменты сужают помещение, визуально приближают стены.
- Лишние предметы обстановки сильно загромождают жилье. Поэтому любой элемент хрущевки просто обязан быть функциональным, необходимым.
- Замена привычных и неудобных распашных дверей другими конструкциями (купе, гармошкой) подарит хозяевам драгоценные метры.
- Небольшое количество декоративных элементов идеально, так как многочисленные предметы только сужают пространство.

Максимальная освещенность для маленьких квартир — условие обязательное. Например, одну центральную люстру с успехом заменяют несколько точечных светильников.
Отделочные материалы для ремонта 2-комнатной хрущёвки с фото интерьеров
Как мы уже упомянули, для ремонта лучше использовать только качественные отделочные материалы, если только не хотите выбрасывать деньги на ветер. При выборе отделки необходимо учитывать и будущее стилевое оформление квартиры. Если бюджет не позволяет использовать натуральные материалы, то можно приобрести качественную имитацию.
ФОТО: avatars.mds.yandex.netСовременные отделочные материалы дают дизайнерам большие возможности
Отделка пола, потолка и стен квартиры в хрущёвке
Выбор напольного покрытия во многом зависит от выбранного стиля интерьера, ваших предпочтений и финансовых возможностей. Безусловно, лучше всего использовать натуральные материалы: дерево и природный камень. Однако не все могут позволить себе дубовый паркет или мраморную плитку, да и не каждый стиль это требует. Можно выбрать качественный ламинат с имитацией натуральной древесины или керамогранитную плитку. В качестве бюджетного варианта можно выбрать линолеум на тёплой основе с рисунком, копирующим текстуру древесных волокон или камня. Независимо от выбранного вида напольного покрытия, отдайте предпочтение светлой цветовой палитре материала. Так вы сделаете маленькое помещение визуально более просторным.
ФОТО: arxip.comУдачное сочетание ламината и керамической плиткиФОТО: svoimy-rukami.ruЛаминированная доска, имитирующая натуральную древесину
ФОТО: folksland.netПо-прежнему популярный и недорогой вариант напольного покрытия — линолеум
Наиболее простой и недорогой вариант отделки потолка малогабаритной двухкомнатной квартиры в хрущёвке – это шпаклёванные и выкрашенные поверхности. Этот вариант хорош ещё и тем, что высота стен редко превышает 2,5 м, а если сделать натяжную или гипсокартонную конструкцию, то она уменьшиться ещё минимум на 100 мм.
ФОТО: avatars.mds.yandex.netТрадиционное решение — ровный белый потолок
Если плиты перекрытия положены неровно, что не редкость в домах советской постройки, то стоит установить гипсокартонный или натяжной потолок из ПВХ-плёнки. Так можно скрыть все дефекты потолочной поверхности и коммуникации (вентиляционные трубы и электропроводка), а также установить освещение скрытого типа.
Что касается цветового решения, то для маленьких помещений рекомендуется окрашивать потолки в традиционный белый, бежевый или цвет слоновой кости. Это позволит визуально расширить пространство.
Традиционный способ отделки стен — выравнивание и оклеивание поверхности обоями. Однако этот вариант проблематичен для хрущёвки. Дома советской постройки не отличались идеально ровными стенами, и наклеить обои идеально «стык в стык» практически невозможно, особенно, если опыта подобных работ не имеется. Если вы всё же решили оклеивать бумажные, виниловые или флизелиновые полотна, то приготовьтесь к затратному по времени и средствам, выравниванию поверхностей. Обойтись без сложной подготовки стен можно, если использовать жидкие обои, которые помогут скрыть незначительные дефекты и разнообразить интерьер помещения. Также популярно шпаклевание с последующей покраской. Этот вариант хорош тем, что можно с лёгкостью изменить интерьер, просто перекрасив стены в другой цвет.
Правила зонирования
Дизайнеры интерьера часто используют такой прием, как зонирование. Суть его заключается в том, чтобы в одном общем пространстве отделить одну функциональную зону от другой при помощи различных приемов: световых и цветовых акцентов, предметами мебели или отделкой (пола, стен, потолка). Самые распространённые случаи, когда зонирование необходимо:
Кухня объединена с гостиной. Зону отдыха от зоны приготовления пищи отделяют барной стойкой, которая может выполнять функцию обеденного стола. Или используют разные материалы или разные оттенки покрытия пола и стен.
Стоит упомянуть, что не все изменения пространства вашей квартиры допустимы в многоквартирном доме:
- запрещено увеличивать площадь кухни или санузла за счет жилых квадратных метров более чем на 25%;
- нельзя объединять кухню с другой комнатой с помощью арки, если плита газовая (но такое действие не запрещено в случае с электроплитой);
- недопустимы вмешательства в несущие конструкции (стены, перегородки), а также их удаления;
- любые изменения в схемах общедомовых инженерных коммуникаций запрещены;
- нельзя переносить кухню в жилую комнату;
- недопустимо оборудовать санузел в зонах, где у соседей снизу находится жилое помещение; исключением являются двухэтажные квартиры, в которых ваша жилая комната может находиться под санузлом;
- запрещается переносить батареи центрального отопления на балконы и лоджии, даже если они застеклены и утеплены;
- использование чердачных помещений в качестве жилых исключено.
Что можно и чего нельзя?
Исходя из классификации видов перепланировки, следует:
- Без согласования, на основании эскиза можно производить:
- демонтаж встроенных шкафов;
- устройство перегородок и проёмов, не ослабляющих несущие конструкции;
- обустройство лоджий без выноса отопительных систем и остекление балконов без нарушения пластики внешних конструкций;
- перестановку бытовых приборов с прокладкой дополнительных коммуникаций;
- замену инженерного оборудования на аналогичное;
- установку кондиционеров, тёплых полов;
- косметический ремонт.
- На основании заявления в БТИ и Акта о завершении работ по перепланировке можно согласовать (в уведомительном порядке) следующие изменения, внесённые во внутреннее пространство квартиры:
- перенос в границах квартиры туалетов и ванных комнат;
- устройство или закладка проёмов в несущих стенах;
- разборка ненесущих перегородок (полная или частичная);
- установка, перенос, замена газовых плит на электрические (и наоборот);
- замена коммуникаций, влекущих увеличение энергопотребления (водоразбора).
Здесь можно скачать: Бланк заявления на перепланировку квартиры.
Образец заполнения заявления на перепланировку квартиры в собственности.
Образец заполнения заявления на перепланировку квартиры в социальном найме.
Акт о завершенной перепланировке.
Обязательно согласование проекта для получения разрешения на выполнение работ по:
- переустройству тамбура;
устройству входа на цокольный этаж;
выносу на наружную стену вентиляционных коробов;
устройству проёмов для лестниц.
К сведению: Для жилищной инспекции будет иметь значение не только ширина нового дверного проёма (не более 110 см), но и его близость к угловым конструкциями, а так же дополнительное усиления стены. Причём, чем выше этаж помещения, тем больше шансов на получение разрешения на этот вид работ.
Более подробно о том, что можно и нельзя делать при перепланировке квартиры читайте тут.
Двухкомнатная хрущевка: переделка
В постройках тех лет двухкомнатных квартир гораздо больше, чем однокомнатных, но проблемы у них одни и те же: малые площади и не продуманное расположение комнат, с наличием проходных помещений. Если заняться перемещением стен, то большинство проблем оказываются решаемыми. Например, имеется возможность разделения смежных комнат, после чего можно из двухкомнатной квартиры сделать и трехкомнатную. Для этого достаточно смонтировать еще одну перегородку, которая отделит комнату от коридора. В результате появляется дополнительная полезная площадь, где можно разместить гардеробную и кладовку. Полученное таким образом второе помещение более длинное и более узкое, разделяется на две части, посредством перегородки из гипсокартона.
На фото ниже представлен второй вариант неудачного планирования жилого пространства тех времен. Здесь, чтобы попасть во вторую комнату, необходимо пройти через первую. Планировка настолько неудачная, что, мало того, что малые площади, еще и появляются и мертвые зоны, что искажает функциональность комнат. Иногда, в торце второй комнаты располагают кладовку, которая не может быть использована в полной мере.
После переделки по этому варианту, ванна приобрела квадратную форму, а прихожая соединилась с первой комнатой. В данном случае, она выполняет роль гостиной, из которой сформирован вход в кухню. Следующее, более дальнее помещение разделено на две спальни. Перегородка между двумя спальнями смонтирована таким образом, чтобы осталось место для небольших гардеробных одной и другой спален.
Обычную двухкомнатную хрущевку в панельном доме, возможно превратить в квартиру студию, объединив гостиную и кухню. Основная задача подобной переделки состоит в том, чтобы сместить входные двери. За счет этого большая прихожая послужит в качестве гардеробной. При этом, объединяются туалет и ванна, а кухня и гостиная объединяются за счет частично разобранной перегородки.
Если имеется желание, то вторая комната может быть разделена на две части, за счет перегородки из гипсокартона, что позволит разделить рабочую и спальную зоны. Чтобы в спальню проникал свет, перегородку достаточно поднять на высоту не больше 1,5 метра.
Достаточно интересный вариант переделки 2-х комнатной квартиры в 3-х комнатную. Здесь прихожая немного скошена, что дало возможность увеличить площадь санузла, а перегородка, которая установлена между кухней и комнатой, частично удаляется. Вторая комната разделяется на 2 части, площадь которой увеличивается за счет кладовки и стенного шкафа. В результате образовались 2 спальни, а так как квартира угловая, то в каждой из спален имеется свое окно.
Коридор принял интересную форму, так как его стены располагаются по диагонали. В результате получается неплохой вариант, хотя функциональность коридора значительно снижена.
4 варианта перепланировки двухкомнатных хрущёвок
Watch this video on YouTube
Согласование перепланировки
Первая часть сделана, и она оказалась самой легкой. Теперь владельцу предстоит вторая часть — общение с чиновниками. Приготовьтесь, уважаемый читатель, к нудному перечислению правил. Но без них весь наш распрекрасный, дорогой ремонт может быть оспорен. Придется платить штраф, а в некоторых случаях весь ремонт придется «откатывать к исходному состоянию»: снова возводить межкомнатные перегородки, убирать раздвижные панели и восстанавливать старую разводку электропроводки.
Разумеется, можно сначала согласовать перепланировку, и только потом приступить к непосредственному ремонту, и ниже мы рассмотрим преимущества такого подхода.
Если перепланировка подразумевает демонтаж перегородок внутри квартиры, то есть в план БТИ вносятся изменения, то закон требует согласовывать этих изменения. Жилищный кодекс определяет, как должен действовать домовладелец.
История появления «Хрущевок»
Стиль советского домостроения определило на долгие годы постановление «Об устранении излишеств в проектировании». Документ обнародовали в 1955 году, а уже в сентябре 1956 года были разработаны новые планы строительства многоквартирных домов. Цель возведения хрущевок – максимальное удешевление жилья для всех слоев населения. Граждане советского союза свято верили, что к концу 80-х гг., когда наступит коммунизм, каждая семья будет проживать в отдельной квартире.
Первыми появились панельные дома. С массивными плитами начал экспериментировать еще в 1948 году архитектор и изобретатель А.К. Буров. Увидев у французских коллег многоэтажные дома в индустриальном стиле из готовых блоков, советский техник начал подобное строительство на родине.
Результат его сильно огорчил – маленькие однообразные квартирки показались нищими и убогими. Но Хрущев, напротив, был восхищен опытом французов, купил у них технологическую линию изготовления панелей и немедленно приступил к застройке городов компактными пятиэтажками.
Советские хрущевки строили из блоков, панелей, кирпича. Все дома имели ряд общих характеристик – отсутствие лифта и мусоропровода, крошечные кухни (до 4,6 м2) и прихожие. Жилая площадь однокомнатной квартиры – 16 м2. Даже такая малая территория для проживания обязательно имела кладовую.
Мебель
Вид и расстановка мебели зависит от стиля помещения. Но перед тем как выбрать стиль интерьера необходимо запомнить несколько правил использования мебели:
- предпочтение стоит отдать многофункциональным элементам, но не слишком большого размера;
- если используется шкаф в спальне для вещей, то в нем должны присутствовать выдвижные шкафчики, полки с большой вместимостью;
- кровать для спальни лучше применять с внутренним пространством, чтобы туда также можно было убрать белье и вещи;
- в зале можно установить средний диван светлого цвета, который будет служить разделением помещения на зоны;
- если в комнатах устанавливаются пуфики, то стоит приобретать изделия с наличием внутреннего места для складывания вещей;
- в кухне можно установить небольшие шкафчики с дверцами наверху, а снизу лучше отдать предпочтение шкафам с полками, в которых можно будет хранить тяжелую посуду;
- не забывайте, что применение модульных разборных конструкций поможет намного сэкономить место комнат.
Тонкости оформления поверхностей маленьких помещений
Отделка и оформление поверхностей поможет не только украсить интерьер, но и создать желаемый эффект расширения пространства. Контрастное оформление белого потолка с легким глянцем и темного пола станет оптимальным решением для небольшой жилплощади 44 кв метра. Подъем пола, или комбинирование различных материалов органично подчеркнут дизайн и раздел помещения на зоны.
В качестве отделочных материалов, чтобы декорировать несущие стены, используются камни, жидкие обои, фактурная штукатурка, лепнина. Продажа современных фактур и цветовых вариаций обоев позволяет легко создать красивое оформление. Несмотря на низкие потолки, нестандартный план помещений, допускается использовать натяжные, гипсокартонные потолочные конструкции. Органичные переходы многоуровневых вариантов помогут в зонировании даже проходной комнаты
Во время ремонта, выполняемого своими руками, особенно важно учитывать практичность и качество отделочных материалов
Третье. Обстановка
Решив приобрести в маленькую квартиру-«хрущевку» новую мебель
, не смотрите в магазине на громоздкие шкафы и пузатые комоды, смело идите мимо грубых столов и тяжелых стульев, бегите прочь от огромного ложа и глубокого мягкого дивана. Эта мебель не для вас! Вернее, не для вашей квартиры. Не следует думать, что вместительный шифоньер поможет спрятать все вещи: поставив его в 18-метровой комнате и аккуратно сложив белье и развесив одежду, вы обнаружите, что осталась масса предметов, для которых требуется еще один комод или шкаф-пенал, книжные полки и сервант. Поэтому, если позволяет планировка, то самым оптимальным предметом интерьера будетшкаф-купе . Вместительный, достаточно глубокий, с полками до потолка, он позволит спрятать массу вещей. Однако, укладывая все их в новенькое нутро новенького шкафа, параллельно сделайте ревизию и избавьтесь от тех предметов, которые больше не нужны.Не копите старье! Оно буквально «сжирает» пространство!
Особенности перепланировки: как оформить
Внутри однокомнатной хрущевки нет несущих стен. Это позволяет смело передвигать, полностью убирать перегородки, не ставя под угрозу общее состояние здания. Пространство в них надо увеличивать и объединять, а не дробить. Также необходимо учесть, что при перепланировке изменения произойдут не только с конфигурацией помещения, но и с расположением коммуникаций. Все изменения должны обязательно быть внесены в техпаспорт.
Перед тем как проводить любые манипуляции в своей квартире с разрушением, разбором стен, надо обратиться в БТИ. Необходимо сделать новый проект перепланировки и согласовать его в инспекции по надзору за переустройством. Переделка не должна ухудшить эксплуатационные характеристики дома, внешнюю архитектуру. Согласование таких действий длится до 35 дней. По истечении срока на руки выдается решение, отражающее разрешение на смену обстановки или запрет. Самовольная перепланировка в многоквартирном доме влечет наложение административного штрафа.

Заключение
Хрущевки давно уже себя изжили не только с технической точки зрения, но и с моральной. Кроме этого, современная планировка учитывает недостатки прошлого и не допускает подобных просчетов. Те, кто до сих пор живет в хрущевке, ежеминутно и ежесекундно думают, как быстрее осуществить ремонт, с целью избавления от этих крошечных кухонь, туалетов и ванн, а также проходных комнат, где не оптимально используется полезная площадь маленьких комнат.
При этом, следует учитывать, что существует еще одна проблема, не менее серьезная – это организация проекта перепланировки и его утверждение. К великому сожалению, бюрократы не хотят идти навстречу хозяевам хрущевок. Подобное решение получить весьма сложно и хлопотно, а то и совсем дорого. В связи с этим многие владельцы квартир улучшают свою жизнь самостоятельно и переделывают свои квартиры втихую. При определенных условиях, когда придется продавать квартиру, придется заплатить и штраф за самопроизвольную перепланировку. Если все сделано без нарушений технологии, то паспорт на квартиру переделают, естественно за отдельную плату.
Но здесь кроется и другая проблема, связанная с тем, что часть владельцев квартир, при проведении перепланировки все же нарушают требования и нормы, что приводит иногда к плохим последствиям.
Исходя из этого, можно сделать заключение, что любые работы желательно согласовать с соответствующими организациями и получить на это разрешение, иначе можно иметь дело с законом, что повлечет за собой административную или уголовную ответственность.




![Перепланировка хрущевки: 200 лучших вариантов на фото [идеи 2019]](https://hameleone.ru/wp-content/uploads/9/2/6/9266de8883aeedd2bd2ffb5682dddf32.jpeg)































