В чем преимущества лестниц на второй этаж на металлическом каркасе: правильное применение других материалов
Следует отдельно рассмотреть позитивные характеристики, недостатки, правила применения различных материалов.
Фото лестницы на второй этаж в частном доме, сделанной из дерева
Даже без подробного изучения конструкторской документации понятно, что такая конструкция не является сложной. Подобную деревянную лестницу на второй этаж своими руками создать не слишком сложно. Балясины, столбы и поручни можно заказать в столярной мастерской. Ступени простой формы и тетивы с прорезями не слишком трудно изготовить без посторонней помощи. Сборка также не сопровождается большими затруднениями.
Древесину обрабатывать просто. Этот материал покрывают прозрачным лаком, чтобы сохранить для обозрения уникальные рисунки, созданные самой природой. Изделия из такого материала получаются легкими. Они хорошо соответствуют современным трендам, в которых высоко ценится экологическая чистота, натуральность.
Важно! Следует помнить о том, что детали из дерева повреждаются перепадами температуры, влажности, плесенью и другими вредными воздействиями биологического происхождения. Их надо защищать пропитками, специальными поверхностными слоями
Металл применяют там, где предполагаются сложные условия эксплуатации
Такие конструкции подходят для установки на открытом воздухе. Однако в данном случае необходимо создать слой из краски, выполнить иную антикоррозийную обработку для продления срока службы.
Из металла часто делают силовой каркас. К нему прикрепляют съемные ступени из дерева Никелированные металлические поверхности, нержавеющую сталь часто используют при оформлении современных интерьеров Кованые детали используют для создания эксклюзивных изделий
В последнем примере приведена комбинация из нескольких материалов. Поручни сложной формы изготовлены из дерева. С таким теплым гладким поверхностям приятно прикасаться. Силовой каркас скрыт. Он изготовлен из металла, чтобы обеспечить устойчивость тяжелой конструкции. Внешняя отделка ступеней сделана из керамической плитки и натурального камня. Общая стоимость такого решения высокая. Но оно гармонично смотрится в интерьере богатого загородного особняка.
Стеклянные ступени на стальном каркасе
Изделия из стекла не ржавеют. В них не образуются трещины, как вы дереве, при изменении режима влажности, температуры. Они не горят, сохраняют целостность и отменный внешний вид в течение длительного срока использования. Их можно очищать от загрязнений сильнодействующими моющими средствами.
Для создания железобетонной лестницы используют сложную опалубку
Такие надежные конструкции рассчитаны на повышенные нагрузки. Но сами они весят много, поэтому в расчете следует учесть соответствующие допуски для конкретного здания.
Виды конструкций
Двухмаршевая, угловая лестница на второй этажИсточник redirect.access.ly
Для упрощения процедуры выбора оптимальной планировки лестницы на второй этаж, разделим все конструкции на несколько видов. Сделаем это путём обобщения наиболее значимых характеристик моделей:
- Прямая – простой вариант проекта, в котором предусмотрена прямолинейная конструкция с симметричными ступенями до самого верха. Планировка с оглядкой на перечисленные нормы СНиП не составит особого труда.
- Забежные ступени. Эта модификация лестницы двухэтажного дома представляет собой плавное направление движения с равномерным изгибом, то есть поворотом с определённым градусом. Величины отдельных элементов используются прежние.
- Межэтажные площадки. Присутствие площадок между двумя, тремя и более маршами позволяет организовать поворот на 90 или 180°. В больше степени это относится к угловым моделям, но не исключён вариант использования площадки и для прямых конструкций или в качестве комбинации с забежными ступенями.
Другая классификация внутренних лестниц второго этажа происходит по другим признакам:
- Одномаршевые. Подъём осуществляется по одному маршу, то есть беспрерывному набору ступеней. Допускается планировка прямых или забежных вариантов.
- Многомаршевые. На определённой высоте проектируются горизонтальные площадки, отделяющие марши друг от друга.
- Винтовые. Самые компактные модели, по занимаемой площади и пространству. В большинстве случаев проектируются с забежными, зафиксированными вокруг основной, центральной опоры, ступенями.
Виды материала для лестницы

При выборе модели необходимо, в первую очередь, выбрать материал. Каждый вид устройства может иметь свои особенности и в разной степени украшать помещение. Среди популярных материалов чаще всего используются:
- Дерево — наиболее распространённый тип материала. Конструкция из дерева позволяет экономить место и имеет привлекательный внешний вид. Дерево может обрабатываться различным методом и хорошо подвергается реставрации.
- Металл – металлическая конструкция отличается своей прочностью и долговечностью. При установке конструкции с металла пользователь имеет возможность подбирать различные формы и самостоятельно проектировать будущий вид.
- Бетон – материал широко используется. Однако чаще всего такие виды конструкции не подходят для квартир, так как имеют массивный внешний вид.
- Стеклянные – использование стекла, набирает большую популярность среди пользователей. Такие типы подойдут для загородного дома. Часто в качестве дополнительного украшения может использоваться подсветка стекла.
- Натуральный камень – изделие из камня станет украшением для большого загородного дома. Могут использоваться различные варианты устройства. Несмотря на высокую стоимость материала, такие изделия пользуются популярностью и отличаются прочностью и длительным сроком службы.
При выборе в первую очередь необходимо учитывать размеры помещения. Для небольших квартир рекомендовано использовать узкие разновидности из дерева или метала.
Виды
Выделяют такие типы лестниц по конструкции:
- одномаршевые;
- двухмаршевые;
- трехмаршевые и многомаршевые.
По форме их можно разделить на:
- винтовые;
- прямые;
- прямоугольные;
- с поворотом;
- на больцах;
- складные.
Гармоничное сочетание в двухмаршевом подъеме
Дополнительную прочность здесь придает форма. В современном дизайне хорошо смотрятся нестандартные формы – треугольные, ромбовидные
Переходный дизайн легкой металлической винтовой лесенки, идеально вписывающийся в двухуровневый модерн
Форма и строение зависят от отделки внутри, высоты потолков, площади помещения. Маршем называют один пролет, по их количеству и принято классифицировать все лестницы. Для частного двухэтажного дома наиболее распространенными являются одно- или двухмаршевые подъемы.
Двухмаршевый тип из стекла и металла
Двухмаршевая консоль из темных пород
Spinal – смелый выбор для современного дома. Принцип создания, напоминающей анатомию позвонков, популярен в проектировании винтовых и прямых одномаршевых решений
Выбор типа лестницы
При строительстве дома не всегда изначально определено место под будущую лестницу, особенно если дом строится без детального проекта. В таких случаях оставшаяся свободная площадь для лестницы не всегда соответствует необходимым требованиям.
В большинстве случаев вне зависимости от выделенной площади получается подобрать лестницу, которая будет отвечать всем требованиям хозяев, это может быть:

- прямая;
- поворотная на 90°;
- поворотная на 180°;
- поворотная с забежными ступенями;
- винтовая;
- изогнутая;
- приставная.
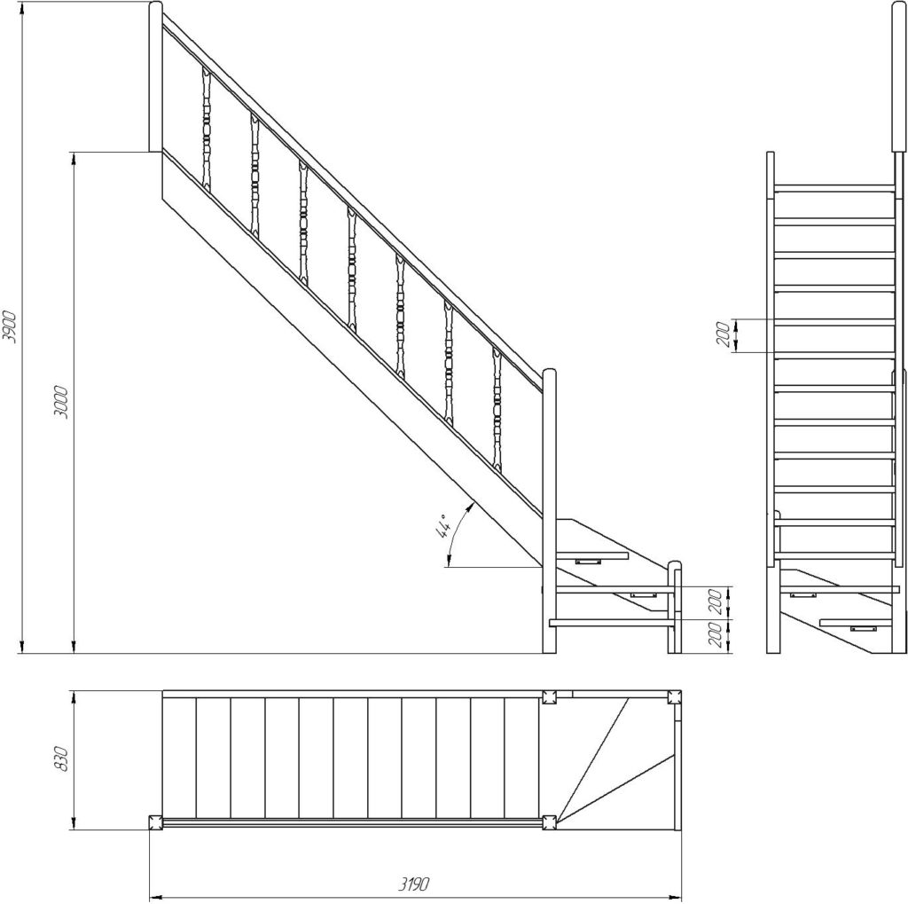
После выбора вида важно определить размеры лестницы:
- Угол наклона – данный параметр может варьироваться от 23° до 70° в зависимости от вида конструкции и места расположения.
- Ширина марша – также в зависимости от вида лестницы и ее назначения может начинаться от 50 см.
- Размер ступеней – изменчивый параметр и напрямую зависит от угла наклона лестницы.
- Перила.
После этого переходим к выбору материала. Самыми распространенными вариантами являются лестницы из дерева, металла и бетона, намного реже встречаются стеклянные лестницы.
И, соответственно, в зависимости от выбранного вида лестницы и материала определяемся с типом конструкции и ее несущими элементами.
Данные для чертежей
Чтобы приступить к разработке чертежей, необходимо собрать первичные данные, это:
- длина и ширина места, выделенного под строительство;
- высота лестницы (состоит из суммы высоты потолка и толщины перекрытия);
- размеры потолочного проема.

Требования к лестницам являются ключевым определяющим фактором того, каких размеров необходима площадь под будущее строительство. Требования к приставным лестницам намного скромнее, чем к стационарным, но все же их необходимо учитывать.

Благодаря этим данным можно будет рассчитать ключевые параметры лестницы и приступить к разработке чертежей и схем.
Как сделать чертеж?
Определив размеры лестницы на второй этаж, переходим непосредственно к созданию чертежа. Существуют определенные нормы проектирования лестниц, будем их придерживаться.
Схему необходимо делать в трех проекциях, это вид сверху, сбоку, спереди.

На чертеже обязательно укажите все размеры, тем самым вы облегчите себе задачу, когда подойдете к этапу подсчета необходимых материалов.
Чтобы не нагружать чертеж размерами и сносками, сделайте отдельно еще несколько чертежей, это может быть:
чертеж ступеней;

перил;

навеса (при необходимости).

Выполнить все расчеты и начертить схемы возможно несколькими способами:
- Самостоятельно – используя информацию, полученную выше.
- Воспользоваться строительным калькулятором на нашем сайте. Вам потребуется только выбрать тип лестницы и ввести некоторые размеры, после чего система автоматически просчитает все параметры и выдаст вам схемы с необходимыми размерами и расчетами.

- Готовые проектные решения, о которых мы говорили ранее, но велика вероятность, что они могут не подойти вам по вашим размерам.
- Самый, наверное, простой, но и самый дорогой способ — это обратиться за подготовкой проектной документации к профессионалам, которые самостоятельно начертят схемы лестницы, придерживаясь норм и правил, а также выполнят все расчеты.
Как сделать удобную лестницу
Критерии выбора лестницы в частный дом:
- подходит под оформление интерьера;
- небольшие размеры — марш должен вписаться в площадь помещения;
- удобство — не нужно высоко поднимать ногу, ступени не скользят, оптимальная высота перил для опоры;
- безопасность — не шатается, не прогибается при ходьбе, ограждение защищает от случайного падения.
В проектировании и строительстве лестничных систем используют строительные нормы, где установлены допустимые размеры:
- уклон — удобно 30-40 градусов, если маршем редко пользуются — 37-45º;
- ширина пролета — для экономии места в подвал, на чердак — 60 см, для межэтажной конструкции — минимум 75 см (достаточно для перемещения одного человека средних габаритов);
- высота прохода — минимум 1 м 90 см, если перекрытия нет — ограничений нет;
- высота шага — 15-20см;
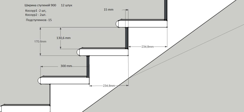
- ширина ступеньки — 25-30 см +4 см (свес проступи).
Чтобы сэкономить место, между двумя маршами вместо площадки рекомендуем делать забежные ступени. Отсутствие подступенков визуально облегчает конструкцию любой формы. Для самостоятельных расчетов удобства лучше использовать программы и онлайн калькуляторы. Но лучше при нехватке места воспользоваться услугами специалистов.
Двухэтажные жилые здания 6 х 6
Это самый экономичный вариант, который, несмотря на небольшую полезную площадь, способен обеспечить хорошие и комфортабельные условия для проживания. Он также предполагает наличие гардеробной комнаты, которая позволит сэкономить место за счет отсутствия шкафов. Планировка 2-этажного дома 6 на 6 предполагает наличие вместительной гостиной, которая совмещается с компактной, но практичной зоной приготовления и приема пищи, а также совмещенным санузлом.
На втором этаже располагается две спальни, одну из которых можно отвести под детскую комнату. Между ними находится гардеробная. Полезная площадь здания увеличена за счет примыкающей к гостиной застекленной террасы, проходящей по всей длине внешней стены. В теплое время года ее можно использовать в качестве зоны отдыха или приема пищи.
Маршевые типы лестниц и их преимущества
Такая конструкция является наиболее распространенной. В ней учтены законы биомеханики движений, поэтому спуск и подъем очень удобен. Однако маршевые лестницы в доме на второй этаж, фото которых наиболее распространены, требуют достаточно большой площади для своего сооружения. Высчитать ее можно следующим образом: необходимо замерить высоту стены, возле которой будет установлена лестница, и длину пола. После этого чертят прямоугольный треугольник. В нем стена и пол будут катетами, а будущая лестница гипотенузой. Параметры длины пола нужно подобрать так, чтобы угол подъема получился 45 градусов. Еще из курса физики мы знаем, что это оптимальный угол для любого движения. Ширину маршевой лестницы можно сделать какой угодно.
Лестница с несколькими маршами.
На заметку! При сооружении маршевой лестницы следует учитывать, что в правильном лестничном марше есть от 3 до 15 ступенек, а чаще 10 – 11. Когда этого недостаточно для удобного подъема на требуемую высоту, то устраиваю площадку, на которую монтируют второй марш.
Маршевая лестница в доме.
Конструкции с применением консолей
Прочность конструкции на консолях в большой степени зависит от способа крепежа и материала. При наличии слабой опорной стены, ее надо усилить каркасом, который может быть очень тонким и незаметным, если будет изготовлен из металла.
В зависимости от материала лестницы, могут применяться кронштейны или способ врезки ступеней в стену, на глубину до 40 см. Такой вид лестниц отличается стильным дизайном, воздушностью, экономией места и материалов для изготовления.
Чтобы заранее заложить в стену элементы для крепежа, консольные ступени должны быть предусмотрены еще в проекте сооружения.
Маршевая лестница на второй этаж
Маршевые лестницы — самые популярные. Во-первых, ими пользоваться удобно, во-вторых, технология их строительства давно отработана. Особенностей расчета немного
Важно определиться с количеством маршей. В одном участке должно быть от 3 до 15 о ступеней
Самые удобные имеют 11-13 штук. Если по расчету получается, что ступеней должно быть больше, их делят на несколько участков, между которыми делают площадки. Размеры площадок кратны длине шага (600-630 мм). Тогда подъем и спуск не будут вызывать неудобств.
Виды лестниц
Лестницы с площадками занимают довольно много места. Если места не хватает, добавляют повороты. Самый распространенный вариант — расположить лестницу по двум смежным стенам углам. Также для экономии места можно вместо площадки сделать забежные (поворотные) ступени. Только один момент: участок с забежными ступенями — самый травмоопасный. Если в семье есть маленькие дети или пожилые люди, лучше сделайте площадку.
Забежные ступени еще можно описать как поворотные
Как уже говорили раньше, маршевые лестницы делают на косоурах (балки с пилообразным краем) и на теривах (просто наклонная балка). Крепление ступеней к балкам-тетивам требует больше времени и мастерства. Обычно под каждую ступень вырезается «посадочное» место — в доске выбирается паз. Для дополнительной надежности снизу еще прибиваются бруски или устанавливаются уголки. Вариант с уголками надежный, но довольно спорный с эстетической точки зрения. Если вся лестница сделана из дерева, металлические детали очень «режут» взгляд. Аккуратно обработанные бруски смотрятся намного органичнее. Впрочем, при достаточной толщине досок для ступеней и ширины тетивы, можно обойтись и без дополнительного крепежа
В этом случае важно, чтобы ступени не прогибались, иначе они могут выскочить из пазов
Маршевая лестница на тетивах
Сборка ступеней на косоурах более простая: у вас есть две-три опоры, к которым крепят вырезанные по размерам детали. Основная задача — правильно разметить и выпилить косоуры.
Это лестница на косоурах — один из фрагментов сборки
Монтаж маршевой лестницы с пошаговыми фото
Косоуры делают из широкой доски 75-80 мм толщиной и 350-400 мм шириной. Если нет массивной сухой доски, можно использовать клеенные. Как рассчитать косоур описано в виде, но собирать лестницу на второй этаж можно не только как отдельно стоящую.
Пример сборки лестницы на косоурах у стены дальше. Сначала крепим опорные столбы, на которые будут опираться забежные ступени. К этим столбам крепим верхние косоуры.
Установка верхних косоуров
Затем ставим нижние. Косоур возле стены крепим поверх декоративной доски — ее проще мыть и грязь менее видна, чем на стене.
Крепим нижние косоуры — один к столбу, второй к отделочной доске
Промежуточные косоуры устанавливаются в последнюю очередь. Так проще состыковать все элементы.
Косоуры установлены
Начинается монтаж ступеней. После того как они нарезаны, отшлифованы и покрашены все просто: ставим на место, завсерливаем отверстие под саморез, потом закручиваем его.
Монтаж ступеней
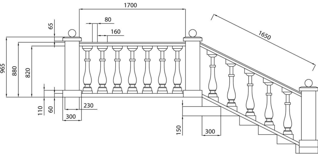
Следующий шаг — крепление балясин. В данном случае они сделаны из нержавеющей трубы с деревянными вставками. Под каждую балясину сверлится отверстие, в которое вставляется трубка фиксируется она на шпильку или любым другим доступным способом.
Отверстия под установку балясин
Сами балясины и перила
Вид сверху
Вариант для тех, кто не любит вычурности
Металл и стекло — интересное сочетание
Необычный дизайн межэтажной лестницы
Деревянная лестница с элементами ковки
Вариант использования пространства под маршевой лестницей
Интересная идея, а с торца — кладовая
Многофункциональная лестница 2 на 2
В каждом доме или квартире с высокими стенами и потолками должна быть временная лестница, которая позволит выполнить необходимые ремонтные работы под потолком или окном в любое удобное время. Для таких случаев подойдет лестница-стремянка. Варианты лестниц представлены в большом разнообразии.
Преимущество универсальной лестницы-трансформера в ее компактности и мобильности
Изменять форму лестницы позволят специально разработанные соединения. Они позволяют трансформировать лестницу так, как это удобно мастеру, так как соединения можно устанавливать в произвольной последовательности. Автоматическое защелкивание секций обеспечивает легкую и безопасную сборку.
Особенности лестницы-трансформера:
- Можно использовать в промышленных и жилых помещениях.
- Лестницы могут быть установлены на поверхностях с разным уровнем, что позволяет выполнить трудные задачи. Например, их можно располагать на маршах, а также на пролетах между лестницами.
- Алюминиевая лестница тонкая, имеет небольшой вес, что делает ее транспортабельной. Она занимает мало места и удобна при перевозках. Для ее хранения подойдет проем, балкон, кладовая или багажник. Также лестницу можно хранить в гараже.
- Стремянка размером 3х12 обеспечивает надежность и легкость в использовании.
- Имеет опрокидывающийся люк и третий ярус, что делает работу более удобными.
Лестницу можно использовать для разных специфических работ, что позволяет ее использовать для ремонтных работ в доме, на даче или в промышленных помещениях. Любая закрытая площадь рано или поздно нуждается в ремонте или реставрации
При покупке стремянки важно обратить внимание на код ОКПД. Приобрести различные виды стремянок можно в сети магазинов «Икеа»
Лестница на 2 этаж: типы
Поднимающаяся лестница в загородном доме – это не только важнейшая функциональная составляющая, но и центральный элемент в интерьере. Хороший подъем должен быть не только высококачественным и надежным, но и эстетичным, гармонично вписывающимся в стилевое направление жилья. Лестницы можно разделить на несколько типов. Так по типу конструкции различают одномаршевые, двухмаршевые и трехмаршевые конструкции.

Лестницы различаются по форме, могут быть наборные, располагаться в гараже, садовые разного ОКПД класса, иметь навес, а также:
- Винтовая;
- прямоугольная;
- Прямая;
- Подъемная на больцах;
- Поворотная на 180 градусов;
- Складная;
- Откидная.
Какой будет форма и конструкция лестницы зависит от того в каком стиле выполнен домашний интерьер, от высоты потолочной поверхности, и от того сколько метров помещение. Марш – это 1 лестничный пролет, по числу маршей и принято разделять лестничные конструкции на классы. Для загородного строения в 2 этажа наиболее распространенными являются 1 или 2-х маршевые подъемы. Винтовая или спиральная конструкция обладает особым шармом, она шикарно смотрится в строениях, которые выполнены в стиле изысканный ампир, дорогой рококо, современный модерн. Винтовая лестница с ажурными перилами ассоциируется со сказкой, волшебством. Однако, в реальности такой выбор не комфортный. Спиральные конструкции были созданы для маленьких помещений, где нельзя было построить широкую лестницу. В жилом доме она может оказаться опасной для малышей и пожилых членов семьи.
Планировка второго этажа
Проект двухэтажного дома с отличной планировкой предполагает создание на втором этаже отдельных изолированных помещений для каждого члена семьи. Обычно здесь располагаются:
- Спальни взрослых членов семьи
- Детские
- Гостевые спальни
- Кабинет или библиотека
- Санузлы
Количество спален рассчитывается по количество членов семьи плюс еще одна комната. Для супругов предполагается обустройство одной спальни.
Разумно на втором этаже разместить обширную террасу или обустроить спальни балконами
Кабинет, библиотеку, игровую комнату или другие подобные помещения важно располагать так, чтобы для всех жильцов туда был удобным вход. Детские спальни лучше расположить дальше от лестницы, а спальни наиболее активных членов семьи – ближе к ней
Санузлы располагаются в непосредственной близости к спальням. Количество санузлов на втором этаже обустраивается из расчета на 2 спальни один санузел. При этом эти помещения обычно оборудуются душевыми кабинами, ваннами или джакузи, унитазами, биде и раковинами.
Монтаж лестницы на второй этаж своими руками
Как правильно рассчитать лестницу на второй этаж. При проведении расчетов для изготовления лестничной конструкции необходимо учитывать планировку, общую площадь помещения, в котором она будет монтироваться. Какие моменты следует учитывать:
- Расстояние между основаниями пола, потолка
- Особенности размещения дверных проемов, стен
- Общая площадь комнаты
- Планировка помещения
Необходимые данные для расчета:
- Угол наклона (наиболее оптимальный вариант – 40-50 градусов).
- Ширина марша: 70–90 см – позволяет подниматься, спускаться одному человеку, переносить мелкие вещи; для комфортного передвижения, возможности поднимать на второй этаж крупногабаритные элементы ширина должна быть не менее одного метра. Необходимо делать запас с каждой стороны по 10 см для установки ограждений.
- Размеры ступеней: оптимальный размер проступи – 26–29 см, высота подступи – 16,5–18,8 см. При расчете деревянной конструкции учитывается размер свеса.
- Проходная высота (рекомендовано не менее двух метров).
- Проработка ограждений.
- Проектировка поворотных участков.

Красивые идеи в интерьере
При покупке учитывайте планировку комнаты, уже имеющиеся предметы интерьера и общую цветовую гамму. Для затемненной северной стороны больше подойдут металлические конструкции с тонкими деталями, которые не будут скрадывать и без того недостаточный дневной свет и загромождать пространство.
Если вы подбираете двуспальную кровать со столом для подростка, то лучше всего присмотреть несколько вариантов, а окончательное решение стоит принимать вместе с ним. Подростки ревностно относятся к атрибутам личного пространства, поэтому следует учитывать их вкус, даже если на ваш взгляд он не соответствует вашим представлениям о комфорте и декоре.
Однако такой проблемы может и вовсе не возникнуть, ведь большинство подобных моделей имеет нейтральный дизайн (с обширным цветовым диапазоном).
Для любителей индивидуальности существуют и ярко выраженные варианты «для мальчиков». Как правило, они оснащены всевозможными спортивными элементами. Девочкам придутся по вкусу модели с большим количеством ящичков, гардеробным шкафом, местом под зеркало, полочками для статуэток и цветов.
Особенно широк на рынке двухъярусных кроватей ассортимент для самых маленьких. Кроватки с игровым пространством на нижнем ярусе могут быть выполнены в виде сказочного замка, королевской кареты, пиратского корабля или современного автомобиля.
Для малышей предусмотрены столы для рисования, ящички для игрушек, для активных ребят – горки и брусья, канаты и другие спортивные изделия.

























































