Проект двухэтажного дома с мансардой: чертежи и фото
Двухэтажные дома с мансардой имеют презентабельный внешний вид. Такие дома предназначены для комфортного загородного или дачного отдыха. Как правило, планировка двухэтажного дома с мансардой предусматривает расположение комнат общего пользования на первом уровне (это могут быть гостиная, столовая, кухня), а личные апартаменты – на втором этаже (спальни хозяев, ванная комната, детские). Выбирая материалы, можно остановиться на бетоне, кирпиче или дереве. Возможны комбинированные варианты, где один этаж выполнен из бруса, а другой – из кирпича. Ниже представлен проект №10, заключительный в нашей подборке.
Рекомендации по выбору формы
Крыша – это не только поле для дизайнерских экспериментов, но и один из основных конструктивных элементов всего проекта, поэтому к выбору ее формы и проектированию стоит отнестись со всей серьезностью. Необходимо учесть несколько факторов.
Для плоских крыш
Чаще всего такие крыши принято размещать на зданиях в южных регионах, для которых характерен продолжительный период тепла и относительно небольшой уровень осадков. К тому же данный вариант формы крыши обычно предпочтительнее для городских застроек или домов, расположенных на ограниченном пространстве дачного участка.
Для скатных крыш
Существует несколько основных вариантов скатных крыш.
- Бесчердачные (вентилируемые, невентилируемые). Несущие элементы данной конструкции служат также перекрытиями для верхнего этажа здания.
- Чердачные крыши содержат в себе перекрытие, отделяющее чердачное помещение от жилой части дома.
При выборе формы крыши стоит более подробно остановиться на каждом виде.
Односкатная. Для такого типа крова характерен угол наклона 20–30 градусов. Этот вид встречается крайне редко. Во-первых, с эстетической точки зрения, он далеко не самый эффектный, а во-вторых, нагрузка от осадков на несущие элементы здания гораздо выше, чем на остальные варианты конструкций. Зачастую такую крышу размещают на хозяйственных постройках либо на пристроях к основному зданию.
- Двускатная. Показатель наклона плоскостей кровли колеблется обычно в пределах от 25 до 45 градусов. Данная модель также довольно проста в исполнении и менее эффектна, чем другие варианты, зато она обладает рядом преимуществ, начиная с низкой требовательности к выбору материала перекрытия и заканчивая простотой монтирования системы стоков
- Вальмовая. Она включает в себя четыре плоскости, распространена преимущественно в теплых районах и характеризуется отсутствием фронтальных элементов. Слуховые окна чаще всего размещают на пересечении вальмовой конструкции и коньковой балки. Данный проект крыши уже намного сложнее, чем у двускатного варианта, да и смотрится более привлекательно.
- Многощипцовая. Существует огромное количество вариантов исполнения многощипцовых крыш в зависимости от количества и размеров фронтонов. Данная интерпретация перекрытий довольно сложная в исполнении и требует от установщика определенных знаний и навыков.
- Мансардная. Угол ее наклона составляет 45–60 градусов у основания и 25–35 градусов в потолочной части проекта. Мансарда дома обеспечивает возможность размещения под ее пространством дополнительного жилого помещения. Общая геометрия крыши довольно сложная в исполнении, однако, ее эффектный внешний вид, стильность и функциональность перекрывают все мыслимые недостатки. Будь то наличие «мертвых» зон, пригодных только для размещения шкафчиков и полок, или проблематичность инсталляции проекта.
- Шатровая. Для такого варианта характерно наличие 4–8 плоскостей, которые в своем классическом виде напоминают пирамиду. Главный плюс – это замечательная аэродинамика. Такой кров идеально подойдет дому, расположенному в местности с сильными и порывистыми ветрами. Главный минус – это небольшая кубатура подкрышного пространства, сложность расчетов и монтажа.
- Купольная. Это необязательно полукруглая, практически сферическая поверхность потолка над головой, называемая геодезической. Хотя на сегодня такой вариант исполнения приобретает все большую армию поклонников, существуют также и другие варианты купольной крыши – это арочный (с использованием дугообразных стропил) и конусный. Купольная кровля обеспечивает пространство максимальным процентом полезного использования, оптимальным обеспечением помещения естественным освещением, исключает задерживание и накопление осадков на своей поверхности, имеет большую прочность при меньшем весе относительно других типов кровли.
- Коническая. Данная вариация крова также довольно эффектна. Ее можно использовать в качестве отдельных элементов декора. Этот вид часто комбинируют с купольными версиями кровли.
В районах с сильными ветрами не стоит устанавливать слишком высокую крышу с большой поверхностью и углом наклона. В регионе, для которого характерны обильные осадки, не стоит останавливать выбор на плоской кровле или сложной модели с множеством внутренних углов.
Какую крышу выбрать одноэтажный на дом 10х10?
При выборе конструкции и конфигурации крыши необходимо учитывать форму самой постройки и ее габариты. Так, крыша на дом 10 на 10 может быть плоской и скатной. То же самое можно сказать и о постройках с габаритами 10 на 12 и 12 на 12. Но у домов квадратных в плане есть одно существенное преимущество – к ним подходит больше видов крыш, поскольку купольные, шатровые и сферические крыши намного сложнее сочетать с постройками прямоугольной формы в плане. Более того, крыша любого дома может быть с мансардой. Если вы будете все делать своими руками, то вам полезно знать конструктивные особенности и преимущества каждой разновидности.
Проекты домов с мансардой из пеноблоков: выбор проекта
Сегодня построить дом с мансардой можно любой формы и сложности. Существуют самые разнообразные проекты домов из пеноблоков с мансардой. Все зависит от индивидуальных требований и нужд, но при выборе проекта стоит руководствоваться параметрами:
желаемая площадь всего дома. Уже на начальном этапе планирования необходимо определиться с этими показателями, провести необходимые расчеты на участке;
- величина жилой площади. Мансарда призвана существенно увеличить именно жилую площадь, ведь она позволяет более рационально использовать пространство;
- необходимое количество комнат. Этот показатель зависит от индивидуальных желаний, но многие его рассчитывают, исходя из количества жильцов в доме;
формы дома. Сегодня из пеноблоков можно построить дам любой формы. Перед тем как приступить к выбору проекта будущего сооружения, необходимо определиться с формами и дизайном здания.
Красивый дизайнерский проект дома с несколькими мансардными комнатами
Выбирать проект всегда непросто, ведь дом строится на многие годы, и он должен радовать и удовлетворять все потребности. Существует два типа проектов: типовые и индивидуальные. Бесплатный проект дома – это типовой проект. При проектировании учитываются особенности материала, его технологические характеристики. К примеру, в доме из пеноблоков можно внутренние стены возвести монолитными вместо привычных кирпичных. Такой подход позволит сэкономить средства.
При возведении домов по типовым проектам не проводится сложная облицовка. Пеноблок не нуждается в ней, достаточно лишь покрасить дом. При индивидуальном проектировании можно простую покраску заменить более красивыми и современными облицовочными материалами. Как правило, используются для таких целей сайдинг, виниловая плитка, декоративный камень.
Но главным недостатком типового проекта является его обыденность. Такой дом не будет индивидуальным и не сможет соответствовать всем требованиям жильцов. Именно поэтому лучшим вариантом является заказать индивидуальный проект дома 8х8 с мансардой из пеноблоков. Такой подход позволит в полной мере удовлетворить желания хозяина, отражает характер и возможности владельца строительства. Но индивидуальный проект стоит дороже: в этом и заключается его отрицательная сторона.
Преимущества и недостатки дачных домов с мансардой: проекты с полным этажом или жилой чердак?
Главным аргументом в пользу мансардного этажа всегда приводится дешевизна его обустройства. Так ли это на самом деле? Снижение расходов обусловлено использованием каркасной конструкции кровли. На практике, чем больше кровля и, соответственно, больше площадь каркаса для обшивки, тем выгоднее мансарда.
Но следует помнить, каким бы просторным не был чердак, он в любом случае занимает меньше полезной площади, чем настоящий этаж. Получается, чтобы сделать мансардное помещение годным для проживания, необходимо предусмотреть такую площадь первого этажа, чтобы она превышала чердачную минимум в два раза.
Ещё один момент, усложняющий задачу: жилой чердак требует обустройства кровли сложной конфигурации и врезки особенных чердачных окон
Чтобы в мансардном помещении создать нормальный микроклимат, необходимо предусмотреть систему вентиляции с принудительной подачей воздуха. Все эти расходы лягут дополнительным бременем при строительстве. И на деле экономия не будет такой уж значительной.
Сторонники мансардного строительства отмечают, что дома с такими «фигурными» крышами выглядят привлекательно. А дизайнеры добавляют, что обустройство жилого чердака имеет множество оригинальных решений.
Одно из таких решений, к примеру, установка больших окон прямо в наклонной части крыши. Если разместить в таком помещении спальню, по ночам можно любоваться звёздным небом не вставая с постели
Рачительные хозяева не любят, когда что-то пропадает зря. В том числе – чердачное пространство. Некоторые превращают его в свалку ненужных вещей. Но на самом деле здесь может разместиться полноценный рабочий кабинет, мастерская, спальня или даже детская комната.
Противники такой рачительности напоминают, что активная эксплуатация пространства под кровлей ухудшает состояние конструкции крыши и значительно усложняет её ремонт.
Сторонники полноценного второго этажа приводят такое сравнение:
| Мансарда | Второй этаж |
|---|---|
| Ограничена в планировке наклонными конструкциями | Имеет полноценные варианты планировки |
| Сложности с обустройством полноценных окон | Отсутствие проблем с организацией естественного освещения |
| Конструкция стенок и потолка мансарды не позволяет беспрепятственно ремонтировать кровлю | Ремонтопригодность крыши и простота конструкции кровли |
| Необходимость в обустройстве сложной кровли | Использование крыши простой формы |
| Потребность в принудительной вентиляции | Использование естественной вентиляции |
| Сильный нагрев помещения в жаркие дни | Сохранение оптимальной температуры благодаря наличию чердачного пространства |
Не смотря на все эти споры и разногласия, проекты дачных домов с мансардой и верандой или гаражом пользуются большой популярностью. Это неудивительно, ведь набирающее огромную популярность каркасное строительство предлагает множество вариантов именно таких строений, с большой полезной площадью и разнообразными планировками. Рассмотрим фото проекты домов с мансардами подробнее.
Статья по теме:
Проектирование многощипцовых мансардных крыш
Многощипцовая кровля является популярной при строительстве зданий с мансардой. Такая крыша имеет несколько углов-скатов и отличается сложной конструкцией стропильной системы. На таких углах часто оборудуют окна мансард, что является практичным и удобным решением.
Многощипцовая кровля имеет сложну систему стропил, но обладает внешней оригинальностью
Сложная многощипцовая кровля подходит для зданий, которые строятся из кирпича, пеноблоков, ракушечника или газобетона. Конструкция может быть симметричной или асимметричной. В первом случае угловые элементы расположены равномерно, а во втором рёбра могут находиться на разных уровнях. Для кровли любого типа требуется прочный мауэрлат, расчёт несущей способности и тщательный выбор материалов для строительства.
Самые удачные планировки в примерах
Проект дома может быть каким угодно. Некоторые умельцы своими руками создают особенные постройки, которые потом становятся достопримечательностями. Выбор проекта зависит от площади участка и целевого использования. Если территория небольшая, можно поставить небольшой двухэтажный домик, если же площади хватает, допустимо возведение одноэтажного строения. Но перед началом всех работ нужно ответить на несколько вопросов:
- Этот дом для постоянного или сезонного проживания?
- Сколько в нем будет размещаться людей? От этого зависит количество этажей и спален, а также санузлов.
- Нужны ли будут подвал и мансардное пространство?

Небольшой дом из брусаИсточник stroydom-comfort.ru
Площадь постройки составляет 64 кв. м., примерно, такие же размеры имеет двух- или трехкомнатное жилье в многоквартирном строении. Если возвести двухэтажную постройку, площадь увеличится, получится полноценное жилище для большой семьи.
В обязательном порядке стоит выделить место для обустройства:
- прихожей;
- кухни;
- гостиной комнаты;
- одной или двух спален;
- ванной комнаты.

Планировка жилого домаИсточник koffkindom.ru
Второй этаж строения поможет значительно увеличить жилую площадь, но это влечет дополнительные затраты денежных средств. Стоит помнить о том, что дом регулярно нуждается в обслуживании для нормального функционирования систем отопления, водо- и газоснабжения.

Двухэтажное строение 8 на 8Источник stroisam2.ru
Удачный мансардный проект позволяет разместить на первом уровне прихожую, санузел, просторную кухню-гостиную и одну спальню. Второй уровень предназначен для 3 спален площадью 12 и 11 кв. м. и холла.
Если в настоящий момент возведение дополнительного этажа не запланировано, но в будущем такая возможность не исключается, стоит предусмотреть возведение другого этажа. Для этого необходимо сделать более прочный фундамент и качественное перекрытие.

Жилой дом 8 на 8Источник proekton.com
При возведении одноэтажного дома следует определять количество личных комнат, отталкиваясь от состава семьи, дополнительное помещение можно оставить для гостей. На одном этаже вместится прихожая, ванная комната, кухня, гостиная и спальни. Последние должны быть наиболее удалены от входа.

Одноэтажная постройка с удобным расположением комнатИсточник roomester.ru
Кухонное помещение и гостиная могут быть обособленными или объединенными. С точки зрения удобства, кухня-гостиная – наиболее удачный вариант. В ней больше свободного пространства, отсутствие перегородок позволяет разместить большой кухонный гарнитур, барную стойку, обеденную и гостиную зону.
В случае разделения данных функциональных зон места в комнатах будет меньше, но во время приготовления пищи запах не распространится по дому.

План дома с отдельной кухней и гостинойИсточник dachmir.ru

Постройка с удобной планировкойИсточник brusbanya.ru
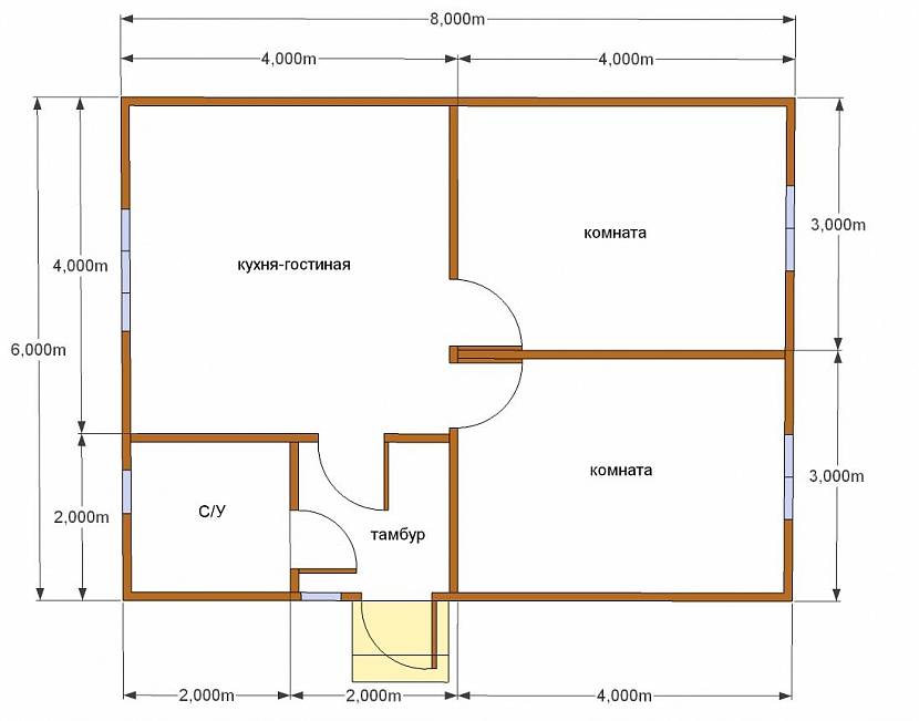
Планировка дома 8 на 8 состоит из кухни-гостиной в левом крыле, холла, тамбура и санузла в центре здания и двух спален в правой части постройки. Площадь кухни гостиной составляет 18 кв. м., этого достаточно для вместительного кухонного гарнитура с барной стойкой или столом- островом, полноценной столовой и просторной зоны для приема гостей. Перед домом находится терраса, здесь можно обустроить место для отдыха.

Просторный двухэтажный жилой домИсточник ibuildrussia.ru
Двухэтажная постройка может иметь два входа. На первом уровне находится гостиная, туалет, ванная и кухня-столовая, а также холл и две прихожие. Лестница ведет на второй уровень, здесь расположен небольшой коридор, рядом с ним кладовая, далее идут 2 спальни, санузел и зал.
В двухэтажном доме основные зоны, а также комната для приема гостей нужно располагать на первом уровне. Второй предназначен для комнат членов семьи.
Выбор конфигурации
Желательно, чтобы мансарда занимала максимум объёма чердака. Но, как правило, это не достижимо из-за уклона скатных кровель. В районе мауэрлата кровля практически примыкает к балкам или панелям перекрытия, делая невозможным использование этой площади.
Традиционным решением в такой ситуации является смещение стены мансарды от стены здания в направлении конька крыши.

Схема устройства высоты потолка мансардного помещения
Чем более стена мансарды приближается к линии конька, тем она может быть выше. Но чем она выше, тем меньшая площадь доступна для переделки в комнату. Компромисс обычно определяется вкусами застройщика и влияет на дизайн помещения.
Вдоль такой стены уже можно расставлять мебель, вешать полочки или устраивать туалеты и душевые в доме. Если стену отодвинуть ещё дальше примерно до высоты в семьдесят сантиметров, то интерьер значительно усложнится. Однако такой дизайн тоже практикуется и иногда выглядит весьма удачно. Высота мансарды на чертеже дома определяется произвольно в зависимости от высоты конька крыши. Обычно достаточной высотой потолка считается два с половиной метра.
Преимущества и недостатки дачных домов с мансардой: проекты с полным этажом или жилой чердак?
Главным аргументом в пользу мансардного этажа всегда приводится дешевизна его обустройства. Так ли это на самом деле? Снижение расходов обусловлено использованием каркасной конструкции кровли. На практике, чем больше кровля и, соответственно, больше площадь каркаса для обшивки, тем выгоднее мансарда.
Но следует помнить, каким бы просторным не был чердак, он в любом случае занимает меньше полезной площади, чем настоящий этаж. Получается, чтобы сделать мансардное помещение годным для проживания, необходимо предусмотреть такую площадь первого этажа, чтобы она превышала чердачную минимум в два раза.
Ещё один момент, усложняющий задачу: жилой чердак требует обустройства кровли сложной конфигурации и врезки особенных чердачных окон
Чтобы в мансардном помещении создать нормальный микроклимат, необходимо предусмотреть систему вентиляции с принудительной подачей воздуха. Все эти расходы лягут дополнительным бременем при строительстве. И на деле экономия не будет такой уж значительной.
Сторонники мансардного строительства отмечают, что дома с такими «фигурными» крышами выглядят привлекательно. А дизайнеры добавляют, что обустройство жилого чердака имеет множество оригинальных решений.
Одно из таких решений, к примеру, установка больших окон прямо в наклонной части крыши. Если разместить в таком помещении спальню, по ночам можно любоваться звёздным небом не вставая с постели
Рачительные хозяева не любят, когда что-то пропадает зря. В том числе – чердачное пространство. Некоторые превращают его в свалку ненужных вещей. Но на самом деле здесь может разместиться полноценный рабочий кабинет, мастерская, спальня или даже детская комната.
Противники такой рачительности напоминают, что активная эксплуатация пространства под кровлей ухудшает состояние конструкции крыши и значительно усложняет её ремонт.
Точка зрения эксперта
Ярослава Галайко
Ведущий дизайнер и руководитель студии Ecologica Interiors
Задать вопрос
«Психологи предупреждают, что низкие потолки мансарды заставляют человека чувствовать себя в замкнутом пространстве, неблагоприятно воздействуя на его психику. Особо впечатлительные натуры даже могут ощущать приступы удушья из-за низких потолков и скошенных стенок. Стоит задуматься об этом факте, планируя детскую комнату на чердаке.»
Сторонники полноценного второго этажа приводят такое сравнение:
| Мансарда | Второй этаж |
| Ограничена в планировке наклонными конструкциями | Имеет полноценные варианты планировки |
| Сложности с обустройством полноценных окон | Отсутствие проблем с организацией естественного освещения |
| Конструкция стенок и потолка мансарды не позволяет беспрепятственно ремонтировать кровлю | Ремонтопригодность крыши и простота конструкции кровли |
| Необходимость в обустройстве сложной кровли | Использование крыши простой формы |
| Потребность в принудительной вентиляции | Использование естественной вентиляции |
| Сильный нагрев помещения в жаркие дни | Сохранение оптимальной температуры благодаря наличию чердачного пространства |
Не смотря на все эти споры и разногласия, проекты дачных домов с мансардой и верандой или гаражом пользуются большой популярностью. Это неудивительно, ведь набирающее огромную популярность каркасное строительство предлагает множество вариантов именно таких строений, с большой полезной площадью и разнообразными планировками. Рассмотрим фото проекты домов с мансардами подробнее.
Статья по теме:
Материалы для строительства
Материалы для твоего дома должны быть в первую очередь теплыми, иначе в результате ты потратишь на отопление больше, чем на теплоизоляцию. Не забывай про слой минеральной ваты, пенопласта или другого утеплителя. Этим должны заниматься профессионалы, которые смогут просчитать расположение точки росы, чтобы конденсат не скапливался между стеной и изоляцией.
Кирпич красивый, долговечный, удобный и прослужит до ста лет, но он тяжелый, его долго укладывать и нужен крепкий фундамент. Пористые керамоблоки проще в укладке и больше по размеру, но чувствительны к повреждениям и дороже.
Газобетонные блоки не горят и хорошо защищают от мороза и шума, но при неправильном обращении могут трескаться и ломаться. Дерево – полностью натурально и экологично, но дает усадку и требует специальной обработки от гниения, огня и вредителей.
Критерии превращения мансарды в жилое пространство
При обустройстве под скатами полноценного жилья пространство переоборудуют с учетом правил и норм строительства. На нежилой чердак воздействует не только уличная атмосфера, но также теплый и влажный воздух, который поднимается из жилой части дома. Поэтому, чтобы создать комфортные условия в мансарде, при ее возведении выполняют следующие условия:
Стройматы выбирают с учетом той нагрузки, которую они будут создавать на стены. Предпочтение отдают износостойким, прочным и маловесным материалам.
Зона отдыха в мансардеИсточник design-homes.ru
- Качественная тепло- и гидроизоляция поможет поддерживать микроклимат на оптимальном уровне.
- Пароизоляция защитит слой утеплителя от конденсата, возникающего из-за разницы температур.
- Важная часть конструктива – система вентиляции каркаса и стройматов. Она должна быть достаточно мощной и надежной, чтобы безупречно удалять влажный воздух. В противном случае влага, накапливаясь, приведет к появлению плесени и деформации конструкции.
Планировка с выделением зонИсточник pinimg.com
Ванная комната на мансардном этажеИсточник hzcdn.com
Особенности мансардных этажей
Проект дома с мансардой — идеальный вариант для тех, кто хочет использовать площадь строения по максимуму. В этом отношении дополнительное жилое помещение сходно с цокольным этажом. Раньше подвалы использовали исключительно для хранения хлама и размещения оборудования. Сейчас в цоколях обустраивают игровые комнаты, домашние кинозалы, гаражи, сауны или прачечные (как в типовых американских домах). Без плана-чертежа соорудить мансарду невозможно. Со строительными работами действительно может справиться каждый, хотя и здесь часто обращаются к компаниям, которые практикуют возведение объектов «под ключ». А вот правильно сделать расчеты нагрузок на фундамент, продумать расположение всех элементов конструкции, подсчитать расход материалов, может только профессионал, за плечами которого опыт и багаж специализированных познаний.
Перед строительством подготавливают несколько эскизных набросков — в разрезе и с разных точек обзора, и при этом указывают масштаб. На чертеже обязательно помечают расположение оконных проемов, лестницы-входа, коммуникативных линий, обозначают форму и указывают размеры. Самая популярная конфигурация среди мансард — прямоугольная или квадратная. Простой задача кажется только на словах. Приступая к делу, обыватель теряется и даже не знает, с чего начать. Мансарда привлекает обилием света и свежего воздуха. Ее наружная «коробка» включает две составляющие:
- Вертикальные (фронтонные) стенки. Их обычно выполняют из того же материала, что и фасад дома, так как они являются его логическим продолжением.
- Наклонная стена (боковая). Она «начинается» с вертикальной поверхности (аттиковая стена), а дальше ее каркасом служит стропильная система крыши. В роли наружной обшивки потолка выступает кровля. Чтобы увеличить площадь мансарды, меняют угол наклона крыши и увеличивают высоту аттиковых стен.
Преимущества мансарды
Мансарда добавляет жилых метров дому, за счет использования дополнительного уровня. Помещение может стать отличным местом для мастерской или комнаты для курения, которые не всегда уместны в основной части дома. При соблюдении всех необходимых технических правил, мансарда уменьшает теплопотери строения через крышу. Помещение можно оформить в интересном, индивидуальном стиле, отличительном от основной композиции дома.
Но есть и сложности. Мансардные окна стоят недешево, а угол наклона и балки перекрытий требуют опытного дизайнерского взгляда, иначе получится не очень удобная комната. Кроме того, при скоплении снеговых заносов будет не так-то просто очистить окна, если они вмонтированы в скатную крышу. Однако плюсов все же больше, а технологические моменты всегда можно решить.
Красивые примеры
Ниже приведена фотогалерея примеров, как может выглядеть одноэтажный дом с мансардой.
Красиво смотрится мансарда под крышей сложной конструкции. В данном случае она дополнена балконом, который держится на колоннах. Он одновременно выполняет роль козырька над крыльцом.
Большая мансарда над большим домом может быть полноценным вторым этажом, особенно когда высота потолков это позволяет.
В данном случае на мансарде над эркером используются полностью остекленные стены, которые открывают обзор на все окружающее пространство.
Оригинальная конструкция крыши подразумевает наличие нескольких мансардных комнат, предусмотренных для круглогодичного проживания. В частности, имеется комната и над гаражом.
О преимуществах одноэтажного дома с мансардой смотрите в следующем видео.
История возникновения мансард и их особенности
Впервые жилые помещения под крышей появились во Франции в XVII веке. Такое жилье было дешевым и было популярным среди писателей, художников, поэтов, артистов и других творческих натур.
В настоящее время это уже не является экзотикой. Ноу-хау архитекторов прошлого используют не столько в высотном домостроении, но в большей степени владельцы частных домов. Оборудование таких помещений имеет свои преимущества и особенности.
Дом одноэтажный с мансардой
Ремонт и размещение комнат можно отложить на потом. Вначале оборудовать первый этаж, отпраздновать новоселье, а затем взяться за верхнее помещение. Однако в этом случае необходимо сразу провести наверх коммуникации:
- свет;
- воду;
- канализацию;
- интернет.
Вам в дальнейшем не придется нарушать отделку нижнего этажа.




















![80 топовых проектов #2019 [дома из пеноблоков с мансардой]](https://hameleone.ru/wp-content/uploads/b/a/f/bafe66084112de02c2adcc888b905e46.jpeg)















