Размеры
Теплица из листового поликарбоната может быть любых размеров. Подсчитайте, сколько вы готовы выращивать растений в сооружении. Для полноценного роста одного куста томатов необходимо не менее площади 40 х 40 см. Вы можете обустроить более эффективную систему посадок по методу Митлайдера.
При изготовлении чертежа поликарбонатной теплицы воспользуйтесь следующими рекомендациями:
- длину продольных стен удобнее рассчитывать кратной 2;
- рассчитывайте шаг стоек на расстоянии не менее 1 м;
- указывайте на чертеже ребра жесткости и места их крепления;
- чтобы сделать теплицу выше, чем 2 м ширины стандартного поликарбонатного листа, используйте в проектировании и строительстве цоколь. Вы можете поставить сооружение на основание из бруса, кирпича или другого материала.
Теплицы-хлебницы можно устанавливать на ящики-гряды. Это позволит сэкономить на материале и внедрить методику Митлайдера. Наиболее часто дачники строят небольшие парники шириной 2 м и длиной 3-4 м. Каркасные тепличные конструкции, зашитые поликарбонатом, для высокорослых культур делают шириной 3 м и длиной 6 м.
Особенности конструкции теплицы-хлебницы
Основными преимуществами теплицы-хлебницы являются:
- необычная эргономичная конструкция;
- минимальное количество стыковочных линий;
- регулирование проветривания теплицы за счет открытия крышки на необходимый угол до 90 градусов;
- простота сборки и полноценное использование площади теплицы.
Чертеж такой теплицы предусматривает конструкцию верхней части каркаса из двух полудуг, которые фиксируются к основе на шарнирах. Каркас теплицы выполняется из профильной трубы небольшого сечения. Радиусы крышек подобраны с учетом того, что они могут спокойно открываться, не мешая друг другу.
Полезный совет! Учитывая тот факт, что небольшие парники применяют обычно для разведения рассады, которая нуждается в специальном микроклимате, рекомендуется использовать для покрытия поликарбонат с защитой от УФ-излучения. Процент удерживания тепла у такого материала гораздо выше, чем у полиэтиленовой пленки.
Размеры парника подбираются индивидуально. Длина может быть от 3 до 4 метров, высота составляет не более одного метра. Ширина принимается с учетом того, как будет открываться парник — с одной или двух сторон.
Комментарии2 комментария
- Вадим: 22.03.2017 в 11:36
Согласен с автором статьи, что сварка наилучший вариант для конструкции из профилей в плане надёжности, но всего предусмотреть невозможно. Девять лет назад на дачном участке установил стационарную теплицу из профилей, вертикальные стойки забетонировал, все соединения выполнял с помощью сварки. В трёх-пяти метрах от теплицы, вдоль забора росли саженцы голубой ели, которые за это время выросли в деревья. Тень от елей падает на теплицу, урожай в последние два года никакой, а деревья пилить жалко. Придётся демонтировать теплицу, резать «болгаркой» конструкцию из профилей, и заново всё собирать в другом месте.
- Валерий:
06.08.2018 в 19:58
Статья действительно полезная. Что не часто нынче встречается. Обычно статейки шлёпают по принципу тяп-ляп-быстрей. И польза от них такая же. А здесь всё достаточно обстоятельно и весьма подробно разобраны разные практически полезные нюансы. Я даже добавил ссылку на главный экран. Спасибо.
Выбор варианта фундамента для теплицы из поликарбоната
Оговоримся сразу, если вы планируете использовать поликарбонатную теплицу только в летний сезон, и в особенности если ваш участок не страдает от сквозняков, то заботиться о монолитном фундаменте ни к чему. Достаточно обустройства мобильных парников. Их можно переносить с места на место или просто разобрать.
Мобильные парники из поликарбонатаМобильный парник из полипропиленовых труб
Такие парники легко сделать своими руками, они могут использоваться в любой точке вашего участка. Однако если вы планируете сооружение «на века», то прочный фундамент просто необходим. Он убережёт строение от ветров, а также сохранит тепло. Кроме этого, такой теплице не страшны вредители. А растения будут надёжно защищены от перепадов температур в почве и заморозков.
На что устанавливать теплицу из поликарбоната? Выбор фундамента зависит от почвы, на которой вы планируете сооружать теплицу. Первостепенное значение здесь имеет близость грунтовых вод.
Ленточный
Этот тип фундамента обычно устанавливают под теплицы, которые располагаются в низинах или влажных почвах. Такой фундамент делается в двух вариантах: блочный и кирпичный. Его особенность заключается в том, что он охватывает весь периметр. Для этого необходимо вырыть траншею шириной 25 см, глубиной от 50 см и сделать специальную опалубку.
Ленточный фундамент может быть выполнен из кирпича или блоков. Это наиболее бюджетный вариант возведения прочного основания под теплицу.
Ленточный фундамент из блоков
Если теплица не очень большая, блоки или кирпичи можно заменить деревянным брусом, пропитанным битумным лаком или мастикой. Причём основание может быть как на одном уровне с землёй, так и выступать, образуя небольшой бортик.
Точечный
Фундамент находится в земле только на глубину опор. Это могут быть сваи, трубы, залитые бетоном, или кирпичи. Особенность заключается в том, что такие сваи располагаются не по всему периметру, а в некоторых точках.
Столбчатый фундамент под каркасный домТочечный фундамент из кирпичей
Длина «шага» зависит от массивности конструкции. Чем она легче, тем меньше столбцов. Обычно такой тип фундамента предполагает использование в качестве основы бруса. Дерево обрабатывают, подпиливают, соединяют и скрепляют по периметру.
Деревянный брус
Самый бюджетный вариант для установки теплицы. Брус скрепляется скобами по периметру и устанавливается на песчаной подушке. Под углы подкладываются ровные булыжники или кирпичи. Этот фундамент способен выдержать только маленькие теплицы из поликарбоната.
Фундамент на песчаной подушке из деревянного бруса
Основная задача фундамента в этом случае − приподнять конструкцию над уровнем земли, чтобы защитить дерево от губительного воздействия влаги. Брус лучше обработать антисептиком.
Свайный
Используется на почвах с нестабильной устойчивостью – торфяных и глинистых, богатых супесью или склонных к подтоплению. Считается самым крепким и прочным, но и самым дорогим. Монолитное основание позволит удержать конструкцию в первоначальном состоянии. На такие сваи устанавливаются большие теплицы из поликарбоната. Обычно располагают их на возвышении, создавая воздушную подушку, которая может слегка понижать температуру в теплице.
Теплица на сваяхМеталлическое основание на сваях
Для создания этого типа фундамента необходимо пробурить скважины, залить щебень и песок бетоном на расстояние не более 70 сантиметров друг от друга. Сваи фиксируются деревянной опалубкой.
Заливка свайного фундамента
Подобный тип фундамента используется для постройки домов. Такие конструкции считаются самыми прочными и долговечными.
Проектирование теплицы из профиля
Выбрав форму будущего парника, нужно взять несколько листков бумаги (желательно миллиметровки или в клетку), карандаш, ластик и приступить к составлению чертежа постройки. При наличии навыков работы с компьютером, чертеж можно составлять в программах для 3D-моделирования и проектирования. Из них самая простая в освоении — Google SketcUp.

Проектирование теплицы с помощью Google SketchUp
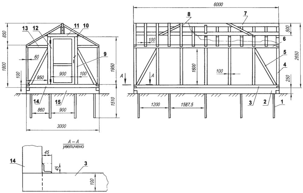
Для начала необходимо выбрать размеры постройки. При этом исходите из габаритов стандартного листа сотового поликарбоната – 6 на 2,1 м. Учитывайте также способ соединения отдельных элементов обшивки друг с другом – при помощи соединительных профилей или внахлест. Чаще всего дачники выбирают ширину теплицы, равную 2-3 м. Длина же может составлять 4, 6, 8 и 10 м, с некоторыми поправками на стандартные размеры листа СПК. Высота арочной теплицы редко делается больше 2,1 м, для двухскатной же конструкции особых ограничений нет, главное — соблюдать угол наклона 25-30° для скатов.

Пример чертежа теплицы из профиля
Не забудьте также о дверном проеме, продумайте, какие его размеры будут удобны для вас
Уделите внимание расположению форточек и фрамуг, особенно в теплицах большой площади, так как растения в них будут особенно нуждаться в вентиляции
Заключительный этап проектирования – продумывание и прорисовка на чертеже соединений профиля в единый каркас. Не забудьте подсчитать количество нужного материала и крепежей для последующей закупки с учетом запаса в 10-15%.
Выбор места, размеров, планировка парника
Перед началом строительства важно выбрать идеальное место, которое в будущем избавит от многих проблем. Ищите как можно более ровное место, чтобы перепады высоты грунта были минимальными
Лучше также немного отступить от всех уже имеющихся построек на участке.
Конечно, если вы не собираетесь строить парник, который должен иметь общую сторону с домом
Обратите внимание и на то, чтобы на место будущего парника падало как можно больше света от солнца
В будущем это положительно скажется на урожае.
Чертежи: как сделать самому, готовые примеры
Лучше выбирать готовые чертежи, так как там уже используется готовая, продуманная конструкция, которую, скорее всего, кто-то уже испытал.
Самостоятельно нужно рассчитывать нагрузку на стенки и крышу и заранее закладывать в чертеж профиль для усиления.
Вот несколько хороших готовых примеров.




Подбор и подготовка материалов, оборудования
Перед началом монтажа нужно собрать все материалы и инструменты, которые будут нужны. Вот минимальный нужный набор:
- Ножницы по металлу;
- Карандаш;
- Рулетка;
- Шуруповерт;
- Опалубка;
- Песок;
- Брус.
Как подготовить фундамент
По периметру будущей теплицы прокапывается траншея, на ее дно нужно разместить песок.
Далее устанавливается опалубка, которая заливается цементным раствором. Обязательно помните о том, что фундаменту нужно застыть. На это уходит около 20 дней.
Монтаж каркаса и способы крепления
Каркас монтировать нужно строго согласно чертежу. Как правило, снизу устанавливается направляющий профиль, к которому будет крепиться остальной каркас.
Если нужно изогнуть какой-то элемент, то его боковые части прорезаются ножницами по металлу. Сам же элемент после этого легко гнется.
Между собой часки каркаса скрепляются с помощью саморезов, получается достаточно надежное соединение.
Обшивка: какой выбрать укрывной материал
Подобные конструкции выгоднее и удобнее всего обшивать с помощью поликарбоната. Этот материал достаточно держит тепло, а также прочен и устойчив к внешним факторам.
Если использовать поликарбонат, то получится надежный парник, который запросто простоит долгое время.




Усовершенствование конструкции, отопление, автоматизация
Совершенствовать теплицы можно практически бесконечно. Начать можно с установки форточек или удобной двери.
Для теплицы из профилей хорошим вариантом отопления будет установки тепловой пушки. Этот вариант очень актуален из-за того, что не нужно топить большую площадь.
Двери и форточки
Для эффективной вентиляции теплицы размером 3×6 м необходимо установить 3 — 4 форточки 40×120 см. Схема их расположения должна предусматриваться на стадии проектирования, чтобы не подстраиваться под пролёты готового каркаса. Форточки лучше устанавливать в верхней части теплицы на боковых стенках.
Подготовка начинается с вырезания из обшивки прямоугольного куска поликарбоната. Желательно попасть в проём между элементами каркаса, но достаточно и близко расположенной горизонтальной поперечины. По размерам листа изготавливается каркас для форточки из уголка или профиля. Поликарбонат крепится саморезами, ими же к верхним углам прикручиваются шарниры. Снизу приваривается кусок цепи, которым форточка будет фиксироваться в открытом состоянии.
Для эффективной вентиляции теплицы размером 3×6 м необходимо установить 3 — 4 форточки 40×120 см
После удаления напильником заусениц края поликарбоната оклеиваются скотчем. Затем нужно вставить форточку на место и убедиться, что ничего не мешает её движению. После проверки свободные части шарниров крепятся к поперечине.
Сборка двери производится по такой же технологии, но рама усиливается одной или двумя поперечинами. Вставляется в подготовленную при сварке каркаса лудку. Если планируется пользоваться садовой тележкой, ширина делается в 1 м, если нет — достаточно 0,6 м.
Инструкция по сбору теплицы
На первом этапе монтажа предполагается подготовка фундамента. Для этого можно использовать кирпич, бетон или другие подобные материалы. В связи с тем, что устанавливаемая конструкция отличается небольшим весом, достаточная глубина заливки фундамента составляет от 20 до 30 см. Чтобы было удобно в дальнейшем крепить каркас, на этапе подготовки фундамента нужно заложить детали для такого крепежа.
Этапы сборки теплицы выглядят следующим образом:
- Производится нарезка профиля для вертикальных стоек.
- Стойки привариваются в соответствии с чертежом, соблюдая вертикальность их расположения.
- Закрепляется верхняя обводка, представляющая собой трубу, которая проходит по верхам установленных стоек.
- Подготавливаются детали монтажа, устанавливаемые между стояками.
- Далее они соединяются за счет установки поперечных перекладин.
- На крыше навариваются балки и крепятся посредством перекладин.
- Собирается и навешивается дверь.
Приведенный вариант монтажа теплицы не является единственно допустимым, так как существует масса других решений. Например, к этому процессу можно подойти с позиции отдельной сборки крупных частей теплицы, которые затем устанавливаются на место. Для этого нужно собирать на земле целые секции размером от 2 до 3 метров.
Внимание! Сборка частей теплицы на земле предполагает выбор максимально ровной поверхности, чтобы исключить вероятность возникновения перекоса. При этом собираемую секцию желательно периодические прикладывать к будущему месту установки, что необходимо для соблюдения точности в размерах.. К монтажу скатов можно подойти таким же образом, то есть собирать их отдельно, а закреплять между собой во время непосредственной установки
Выбор конкретного способа монтажа в большей мере зависит от того, сколько человек принимает участие в сборке теплицы. На подготовленные части форточки и двери желательно наваривать сразу
К монтажу скатов можно подойти таким же образом, то есть собирать их отдельно, а закреплять между собой во время непосредственной установки. Выбор конкретного способа монтажа в большей мере зависит от того, сколько человек принимает участие в сборке теплицы. На подготовленные части форточки и двери желательно наваривать сразу.
Совет! Чтобы подготовить пятиугольную деталь, представляющую собой конструкцию стоек с крышей, можно взять длинную трубу и сделать с одной стороны несколько надрезов, а затем согнуть соответствующим образом.
Конструктивные решения
Теплицы, имеющие трубный каркас, отличаются вариативностью исполнения:
- Прямоугольные, характеризуемые наличием двускатной крыши. Внешний вид таких теплиц соотносится с формой обычного загородного дома. Их достоинство — это большое внутреннее пространство, что дает возможность выращивать высокие растения в любом месте теплицы, а не только в ее центре.
- Прямоугольные, определяемые как тоннельные. Имеют плоскую крышу, обеспечивая этим, с одной стороны, экономию профильных труб, которые достаточно дороги, а с другой, определяя возникновение ряда проблем. Например, горизонтальная крыша создает условия, когда снег не имеет возможности скатываться с нее. В результате тепло парника приводит к таянию снега, образуется лед и возникает опасность повреждения поликарбоната из-за увеличения силы давления.
- Арочные, являющиеся самыми оптимальными с точки зрения расхода стройматериалов. В то же время особенности конструкции требуют наличие специальных трубогибов, с помощью которых профильной трубе придается форма дуги.
Наибольшее распространение в плане сборки теплиц получили материалы с сечением 20 на 20 мм и 20 на 40 мм. Вторые в данном случае обладают изрядным запасом прочности, но отличаются большей массой и более высокой ценой.
В связи с этим неразумно собирать теплицу только из труб большего размера. Куда эффективнее использовать их лишь для установки в качестве стеновых опор и монтажа стропил. Все другие элементы теплицы вполне можно собрать из трубы 20 на 20 мм.

Как сделать теплицу из поликарбоната своими руками чертежи
Если вы решили собрать теплицу из поликарбоната самостоятельно вам потребуется план конструкции и определённые материалы, со списком которых вы можете ознакомиться далее.
Выбор конструкции
Для начала вам нужно определиться с типом и материалом каркаса для будущей теплицы. Существует огромное множество как типовых решений, так и индивидуальных проектов.
Также немаловажен выбор материала. В строительных магазинах продаются готовые наборы из металлического профиля, которые собираются как конструктор.
В качестве материала также могут выступать ПВХ трубы. Они отлично поддаются изгибу, легкие и просты в монтаже.
Ну и конечно нельзя не отметить древесину, которая также служит отличным каркасом для данных построек, доступна, дешева и позволяет монтировать конструкции различных форм и размеров.
Составление чертежа
Теплица своими руками из поликарбоната, составить чертеж которой не займет много времени, получится большой и удобной, при условии, что будут соблюдены все необходимые правила.
В первую очередь вам нужно определиться с размерами конструкции. Зависеть они будут от площади приусадебного участка, что и в каком количестве вы собираетесь выращивать, ну и, конечно, от стоимости материалов.
Подготовка фундамента
Прочность и надежность теплицы будут зависеть от того, насколько качественный фундамент вы подготовите под нее. Вариантов здесь может быть несколько. Самый распространенный – это деревянное основание. Для его возведения вам понадобится брус, уровень, шуруповерт, лопата, рулетка 7 метров, строительный нож. Необходимо напилить 2 штуки по 3 метра и 2 штуки по 3,85 метра.
Но наиболее надежным будет бетонное основание. Если вы собираетесь делать большую теплицу и использовать для каркаса металлический профиль или деревянные бруски, то фундамент из бетона будет необходим ввиду значительного веса всей конструкции.
Виды поликарбоната для теплиц
Производители изготавливают листовой поликарбонат различных характеристик. Материал производят в соответствии с утвержденным стандартом ТУ-2256-001-54141872-2006.
Вы можете соорудить теплицу из поликарбоната следующих типов:
- 2H – это двуслойный материал толщиной от 0,4 до 1 см с прямоугольными сотами. Выпускается в 4 вариациях в зависимости от толщины поликарбоната;
- 3Х – трехслойный поликарбонат толщиной 1,6 см, соты которого имеют отдельные наклонные ребра жесткости. Материал за счет сложной структуры более устойчив к нагрузкам и механическим повреждениям;
- 3H – материал из трех слоев полимерных листов с сотами прямоугольной формы. Имеет толщину от 0,6 до 1,6 см;
- 5W – пятислойный поликарбонат толщиной 2 см с прямоугольными сотами;
- 5X – поликарбонат из 5 слоев, каждый из которых имеет соты с дополнительными наклонными ребрами жесткости. Толщина одного листа может достигать 2,5 см. Способен выдержать нагрузку до 3,4 кг на кв. см.
Материал производят в листах длиной 6 и 12 м. Высота одной панели имеет величину для всех видов 2,1 м. Поликарбонат с маркировкой 5X выпускают высотой 1,2 м.


























































